Projects
Next project
White Office Vilnius
Lithuania 2017
The office is situated in Vilnius (Lithuania) in its Old Town — historical well-known district declared a UNESCO World Heritage Site.
The location peculiarities serve as a milestone of the project concept. Thus the key task was to preserve the existing authentic brickwork together with other original architectural elements such as the wooden grid in the meeting room.
White walls pattern that is used throughout the entire office space combines two functions: a decorative one in order to hide the heating pipes together with the electrical wiring and functional purpose to provide the illumination.
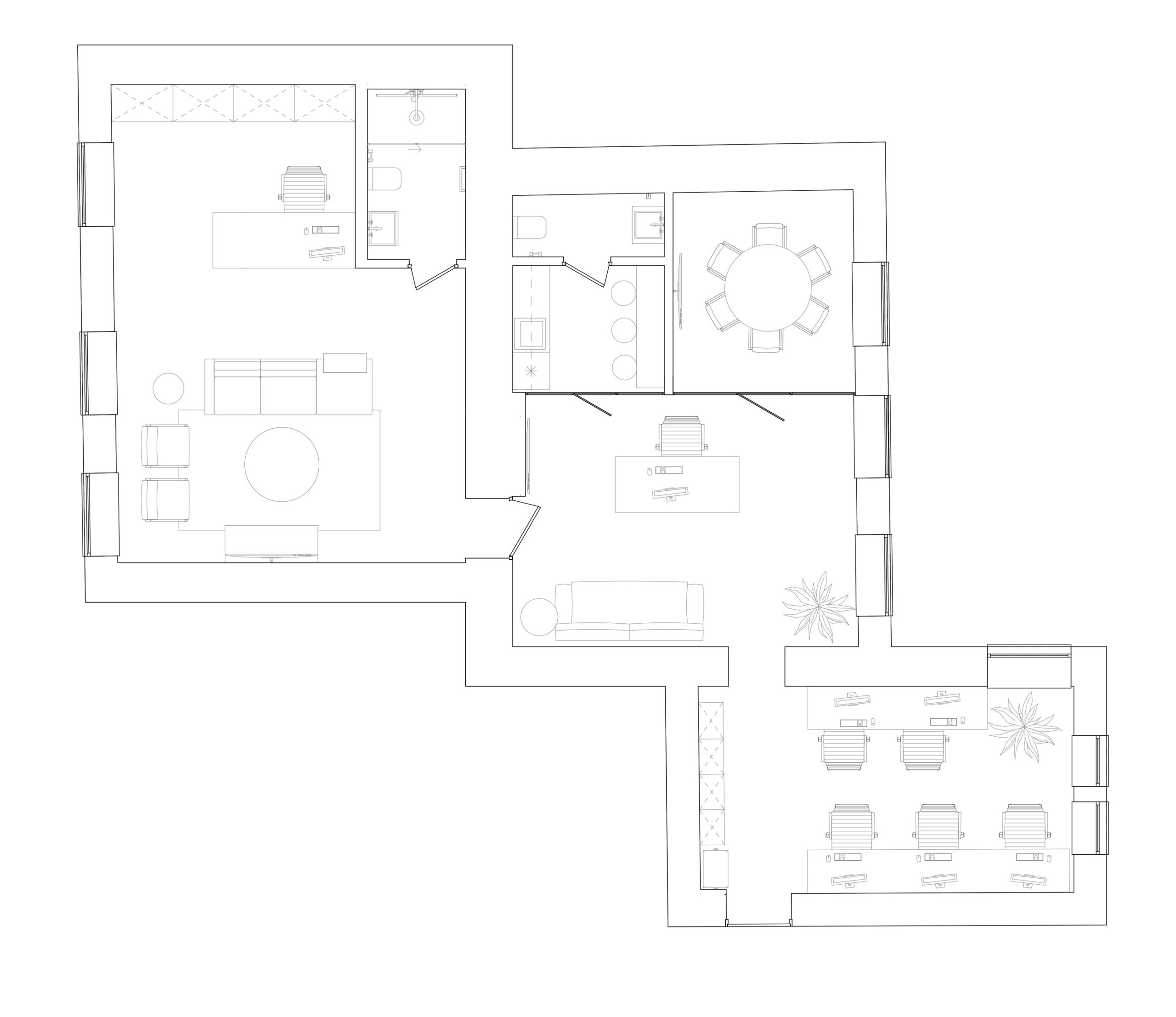
The office typology is enriched and diverse by containing the multipurpose functional zones and diverse by containing the multipurpose functional zones and spaces combined in the most convenient way. Among the others, there are anteroom adjacent to the working area, reception, meeting room and the chief cabinet supplied with the bathroom.
Only natural materials are used in this project. They are marble, wood, ceramic tiles, glass.
Consequently, the concept of the office project is to design a well-organized and ergonomic space for the client to inhabit the space comfortably by using extra-natural materials and preserving and maintaining the original location spirit.